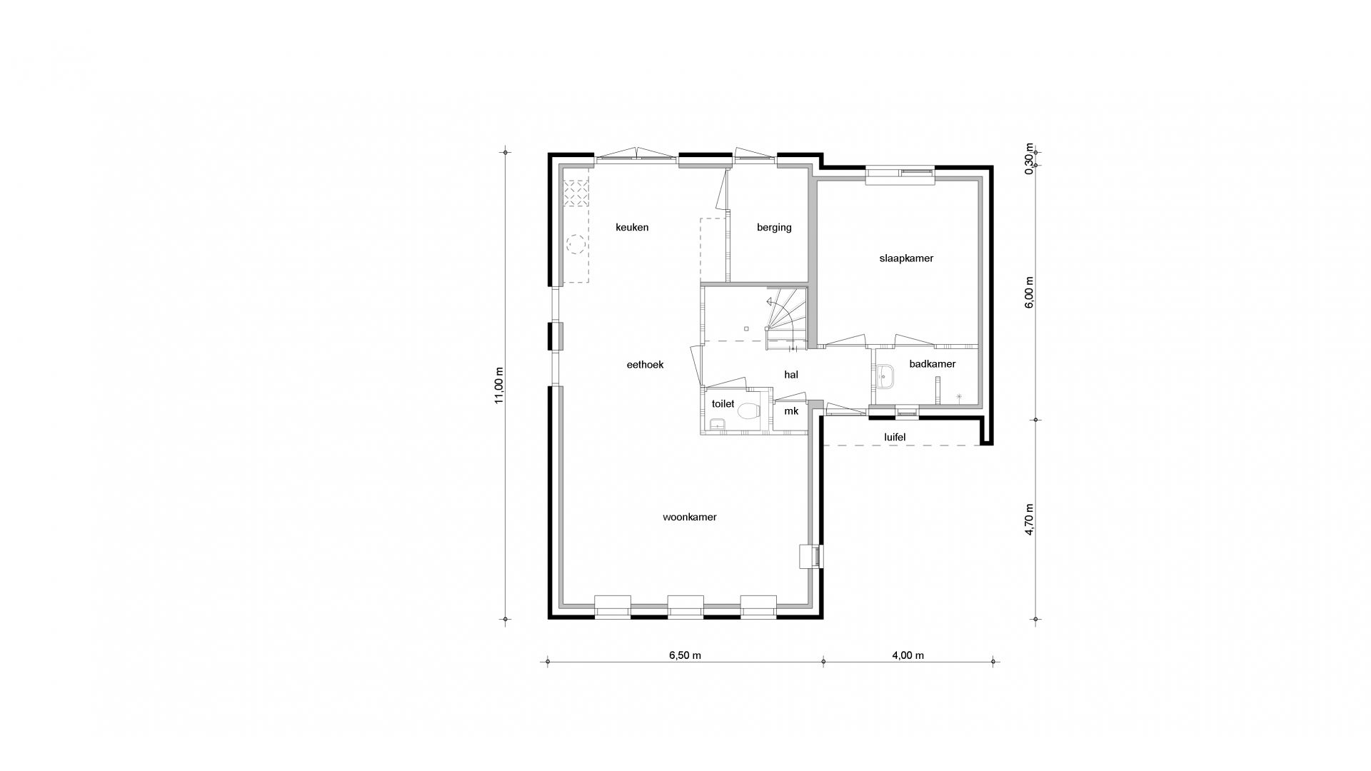
Begane grond

Begane grond Type 03

Eerste verdieping

Eerste verdieping Type 03

Tweede verdieping

Tweede verdieping Type 03

Woonoppervlakte

134m2

Kamers

4-6

Inhoud

541m3

V027-001-0001-02-R
Blitsaerd Oost_2020-03-17_B0_CMS

Type 03 in combinatie met kavels

  • 1

    Kavel 1

    Verkocht
  • 2

    Kavel 2

    Verkocht
  • 3

    Kavel 3

    Verkocht
  • 4

    Kavel 4

    Verkocht
  • 5

    Kavel 5

    Verkocht
  • 6

    Kavel 6

    Verkocht
  • 7

    Kavel 7

    Verkocht
  • 8

    Kavel 8

    Verkocht
  • 9

    Kavel 9

    Verkocht
  • 10

    Kavel 10

    Verkocht
  • 11

    Kavel 11

    Verkocht
+
Op zoek naar een nieuwbouwkavel om je droomwoning te bouwen?