Deze kubistische woning is nog beschikbaar!

Woningtype 7 is een bijzonder woningtype! Niet alleen de uitstraling van de woning is anders, ook mag dit type alleen op kavel 77 gerealiseerd worden. De woning is zeer royaal met een woonoppervlakte van maar liefst 190 m2 en een inhoud van 780 m3! 

 

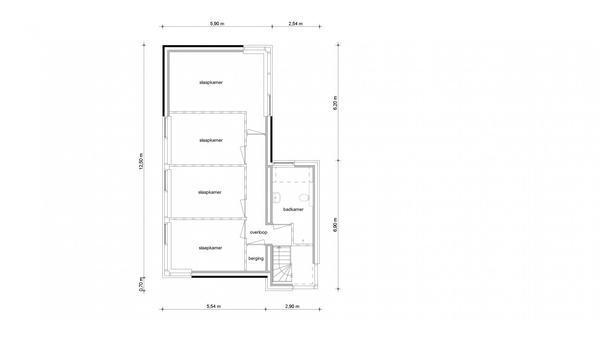
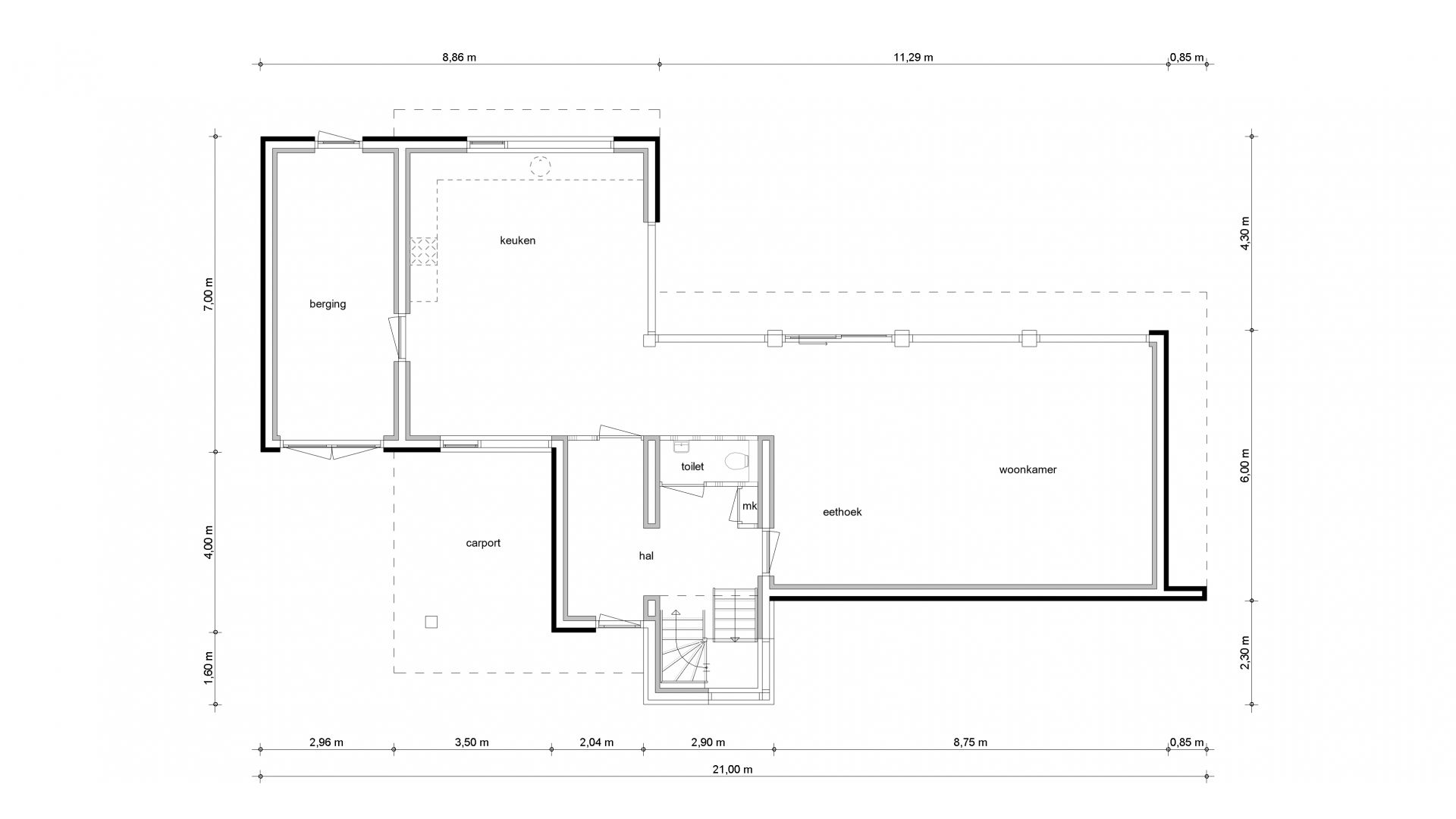
Op de begane grond is een zeer ruime keuken en woonkamer met veel raampartijen zodat je optimaal kunt genieten van de prachtige omgeving. Op de verdieping zijn 4 slaap- en werkkamers met een badkamer.

 

De totale oppervlakte van kavel 77 bedraagt  966 m2. De woning heeft een aangrenzende berging en een carport. Parkeren kan op eigen erf. 

 

Interesse?
Bekijk alle informatie van dit woningtype en stel de woning online samen in de woningconfigurator

witte woning
type 7 - BG_
type 7 - 1e_
+
Op zoek naar een nieuwbouwkavel om je droomwoning te bouwen?