Begane grond

Begane grond Type 01

Eerste verdieping

Eerste verdieping Type 01

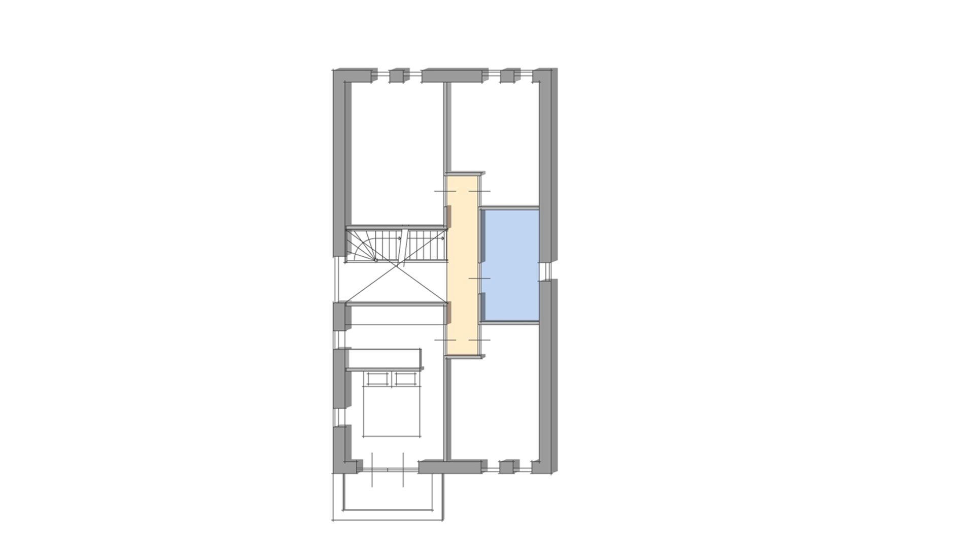
Tweede verdieping

Tweede verdieping Type 01

Woningtype 01 is een ruime gezinswoning. Op de 1e verdieping zijn 4 slaapkamers en een badkamer. De 2e verdieping is ruim en vrij in te delen.

V009-2002-00-001-L
24007_2025-06-23_B0_CMS

Type 01 in combinatie met kavels

  • 1

    Kavel 1

    Beschikbaar
  • 2

    Kavel 2

    Beschikbaar
  • 7

    Kavel 7

    Beschikbaar
  • 8

    Kavel 8

    Beschikbaar
  • 9

    Kavel 9

    Beschikbaar
  • 10

    Kavel 10

    Beschikbaar
  • 11

    Kavel 11

    Beschikbaar
  • 12

    Kavel 12

    Beschikbaar
  • 13

    Kavel 13

    Beschikbaar
+
Nieuwbouwplannen? En wil je inspiratie opdoen voor het bouwen van je droomhuis? Bezoek dan één van onze evenementen!
Op zoek naar een nieuwbouwkavel om je droomwoning te bouwen?