Begane grond

Begane grond Type 02

Eerste verdieping

Eerste verdieping Type 02

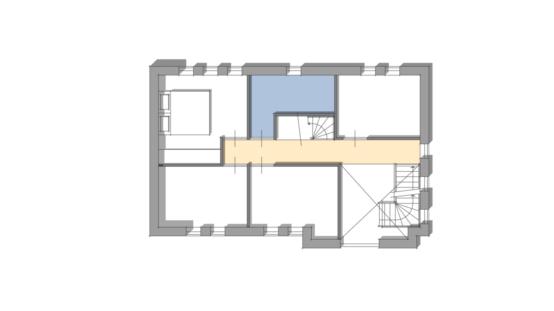
Tweede verdieping

Tweede verdieping Type 02

Woningtype 02 is een ruime gezinswoning. Op de 1e verdieping zijn 4 slaapkamers en een badkamer. De 2e verdieping is ruim en vrij in te delen.

V004-2001-00-001-L
24007_2025-06-23_B0_CMS

Type 02 in combinatie met kavels

  • 1

    Kavel 1

    Beschikbaar
  • 8

    Kavel 8

    Beschikbaar
+
Nieuwbouwplannen? En wil je inspiratie opdoen voor het bouwen van je droomhuis? Bezoek dan één van onze evenementen!
Op zoek naar een nieuwbouwkavel om je droomwoning te bouwen?