Begane grond

Begane grond Type 06

Eerste verdieping

Eerste verdieping Type 06

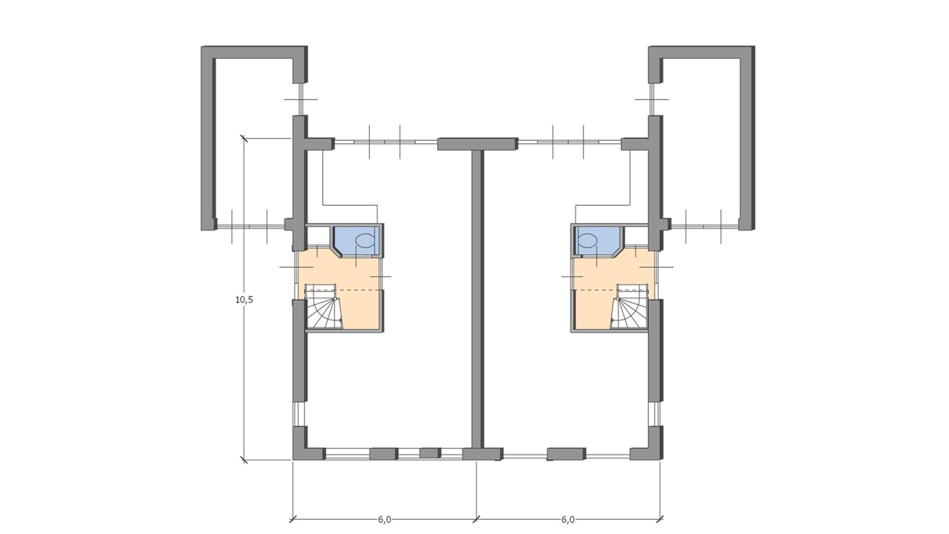
Tweede verdieping

Tweede verdieping Type 06

Woningtype 06 is een 2-onder-1 kapwoning voor het hele gezin. Op de 1e verdieping zijn 3 slaapkamers en een badkamer. De 2e verdieping is ruim en vrij in te delen.

D001-2001-00-001
24007_2025-06-23_B0_CMS

Type 06 in combinatie met kavels

  • 3

    Kavel 3

    Beschikbaar
  • 4

    Kavel 4

    Beschikbaar
  • 5

    Kavel 5

    Beschikbaar
  • 6

    Kavel 6

    Beschikbaar
+
Nieuwbouwplannen? En wil je inspiratie opdoen voor het bouwen van je droomhuis? Bezoek dan één van onze evenementen!
Op zoek naar een nieuwbouwkavel om je droomwoning te bouwen?