Begane grond

Begane grond Type 01

Eerste verdieping

Eerste verdieping Type 01

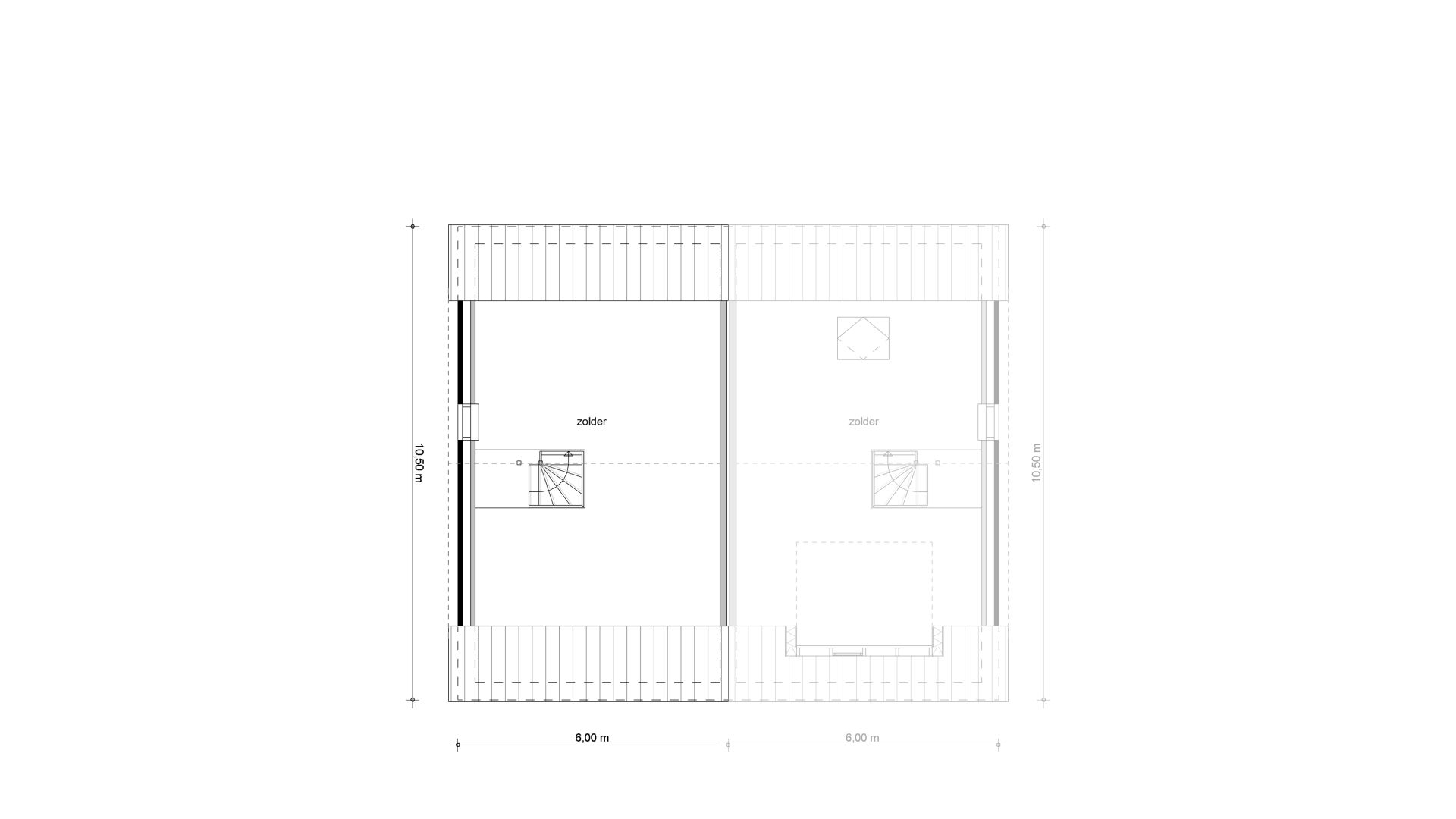
Tweede verdieping

Tweede verdieping Type 01

Woningtype 01 is een ruime 2-onder-1 kapwoning met de woonkamer aan de straatzijde. De geïsoleerde berging is via de straat en de tuin te bereiken. De eetkamer heeft openslaande deuren naar de tuin. De 1e verdieping heeft 3 slaapkamers en een badkamer met een optie voor een ligbad. De 2e verdieping is ruim en vrij in te delen.

Woonoppervlakte

154m2

Kamers

4-6

Inhoud

593m3

23040-01_2024-08-30_001
23040_2025-08-11_B0_CMS

Type 01 in combinatie met kavels

  • 2

    Kavel 2

    Onder optie
  • 3

    Kavel 3

    Onder optie
+
Op zoek naar een nieuwbouwkavel om je droomwoning te bouwen?
Nieuwbouwplannen? Bezoek onze Inspiratiedag in Meerkerk of Deventer op zaterdag 13 december tussen 10:00 - 15:00 uur!