Begane grond

Begane grond Type 05

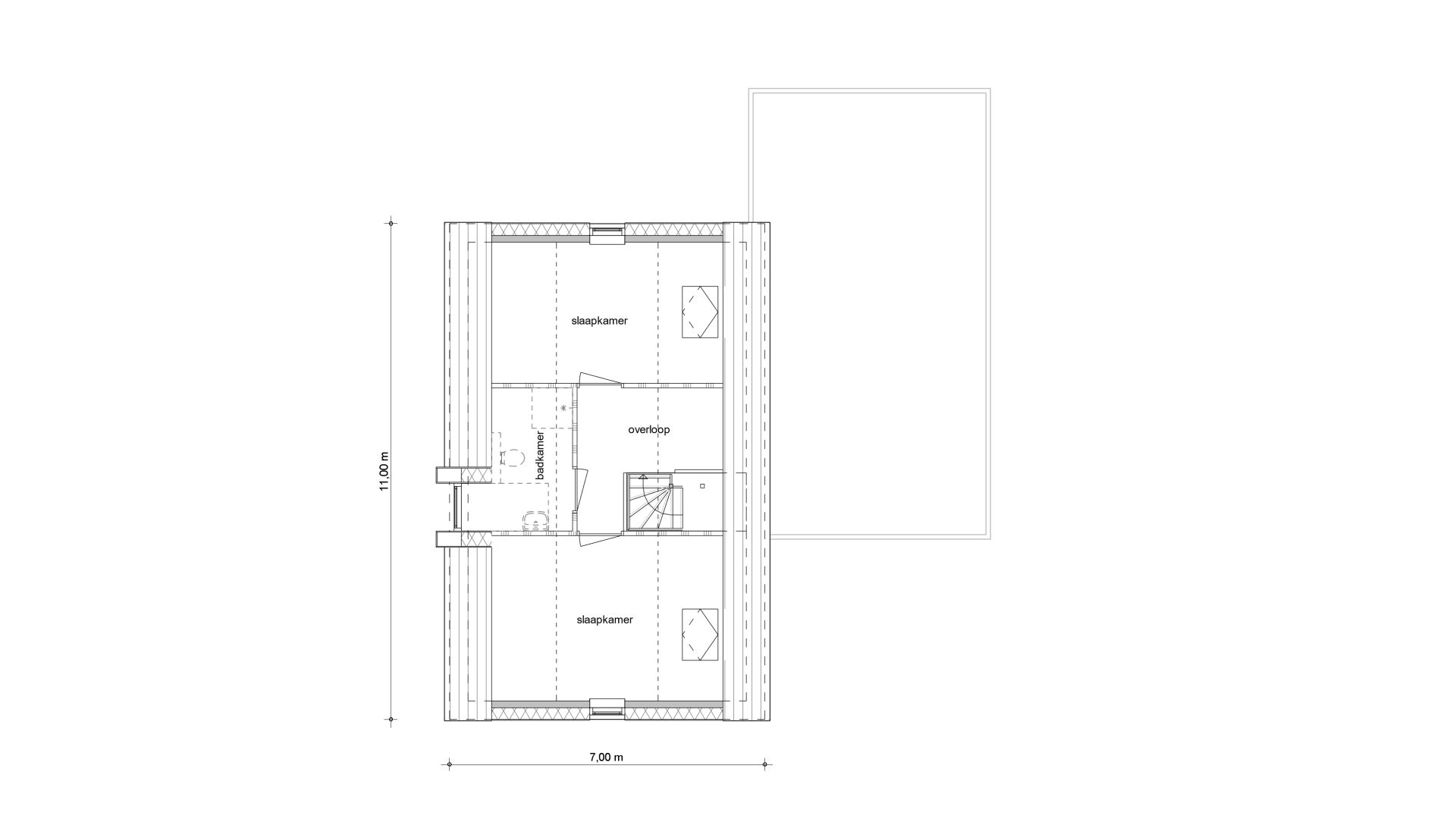
Eerste verdieping

Eerste verdieping Type 05

Woningtype 05 is een levensloopbestendige woning met een slaapkamer en badkamer op de begane grond. Een ideale woning als de kinderen (binnen afzienbare tijd) het huis uit zijn! De slaapkamer heeft uitzicht op de tuin en het achterliggende Sintma park. De geïsoleerde berging is via de woning en straat te bereiken. Op de 1e verdieping is een 2e badkamer. In totaal zijn er 3 (slaap)kamers.

Woonoppervlakte

153m2

Kamers

4-6

Inhoud

624m3

V044-0003-00-R_001
25021_2026-03-30_B0_CMS

Type 05 in combinatie met kavels

  • 1

    Kavel 1

    Beschikbaar
  • 2

    Kavel 2

    Beschikbaar
  • 3

    Kavel 3

    Beschikbaar
  • 4

    Kavel 4

    Beschikbaar
+
Op zoek naar een nieuwbouwkavel om je droomwoning te bouwen?