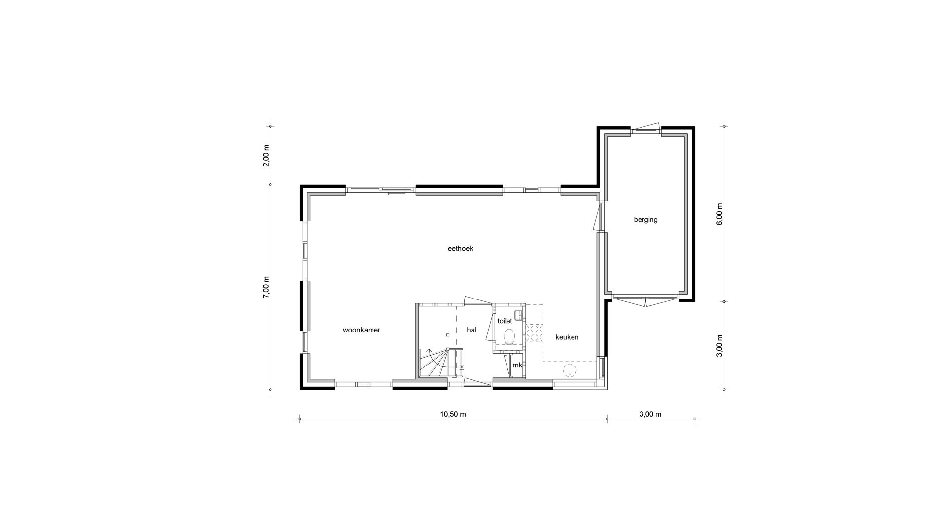
Begane grond

Begane grond Type 01

Eerste verdieping

Eerste verdieping Type 01

Tweede verdieping

Tweede verdieping Type 01

Woningtype 01 is een ruime gezinswoning met een open keuken en royale living met uitzicht op de tuin en het achterliggende Sintma park. De geïsoleerde berging is via de woning en straat te bereiken. De 1e verdieping heeft 3 ruime slaapkamers en een badkamer met een optie voor een ligbad. De 2e verdieping is ruim en vrij in te delen.

Woonoppervlakte

171m2

Kamers

4-6

Inhoud

681m3

V089-0005-00-R_001
25021_2026-03-30_B0_CMS

Type 01 in combinatie met kavels

  • 1

    Kavel 1

    Beschikbaar
  • 2

    Kavel 2

    Beschikbaar
  • 3

    Kavel 3

    Beschikbaar
  • 4

    Kavel 4

    Beschikbaar
+
Op zoek naar een nieuwbouwkavel om je droomwoning te bouwen?