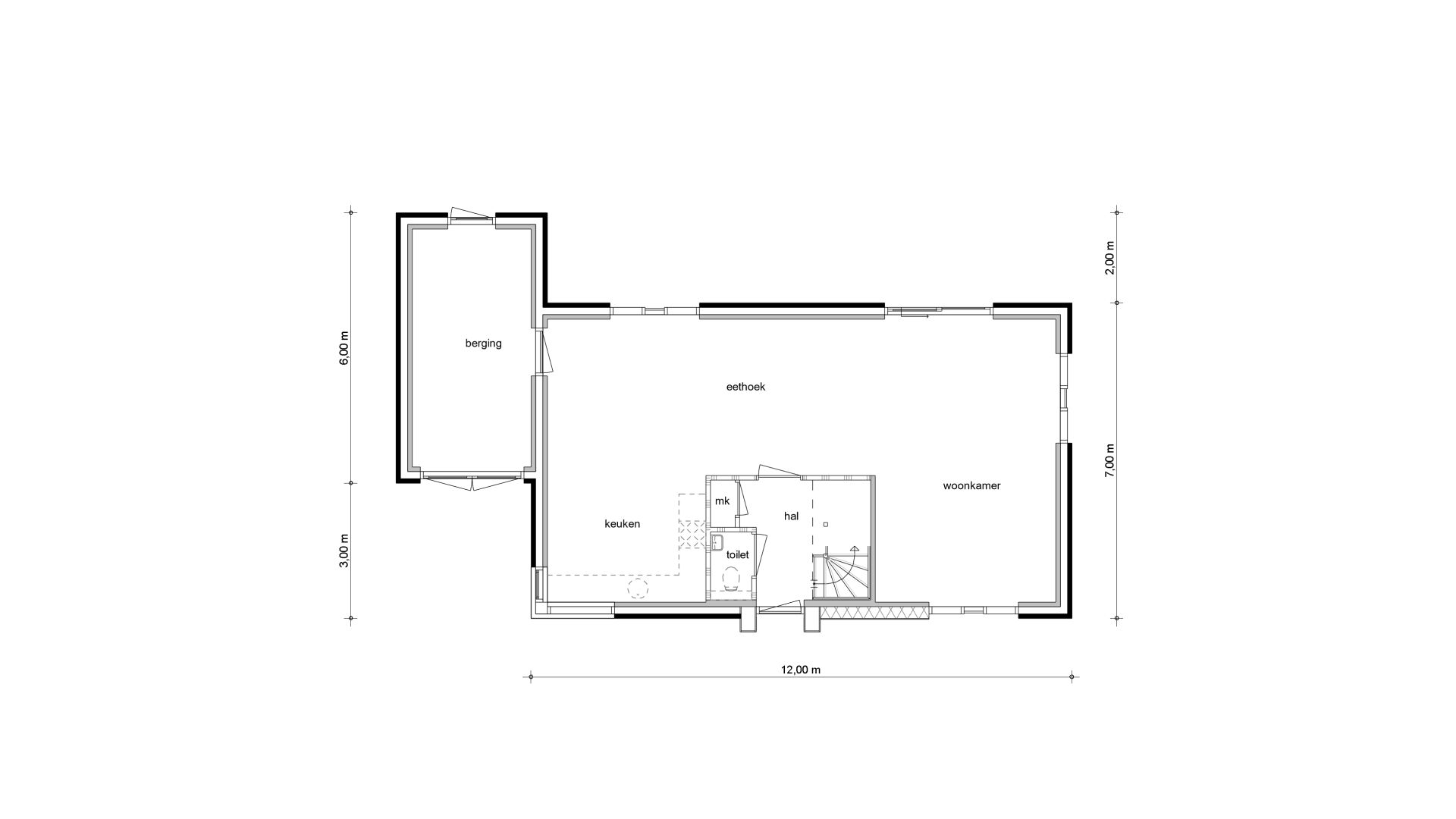
Begane grond

Begane grond Type 03

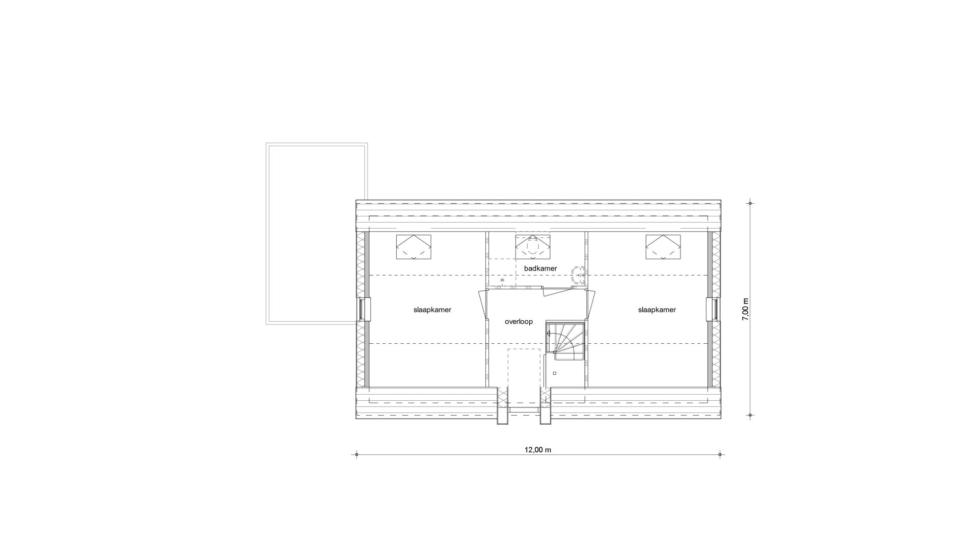
Eerste verdieping

Eerste verdieping Type 03

Woningtype 03 is een comfortabele woning met een open keuken en royale living met uitzicht op de tuin en het achterliggende Sintma park. De geïsoleerde berging is via de woning en straat te bereiken. De 1e verdieping heeft 2 ruime slaapkamers en een heerlijke badkamer.

Woonoppervlakte

133m2

Kamers

4-6

Inhoud

555m3

V077-0006-00-L_001
25021_2026-03-30_B0_CMS

Type 03 in combinatie met kavels

  • 1

    Kavel 1

    Beschikbaar
  • 2

    Kavel 2

    Beschikbaar
  • 3

    Kavel 3

    Beschikbaar
  • 4

    Kavel 4

    Beschikbaar
+
Op zoek naar een nieuwbouwkavel om je droomwoning te bouwen?