Begane grond

Begane grond Type 04

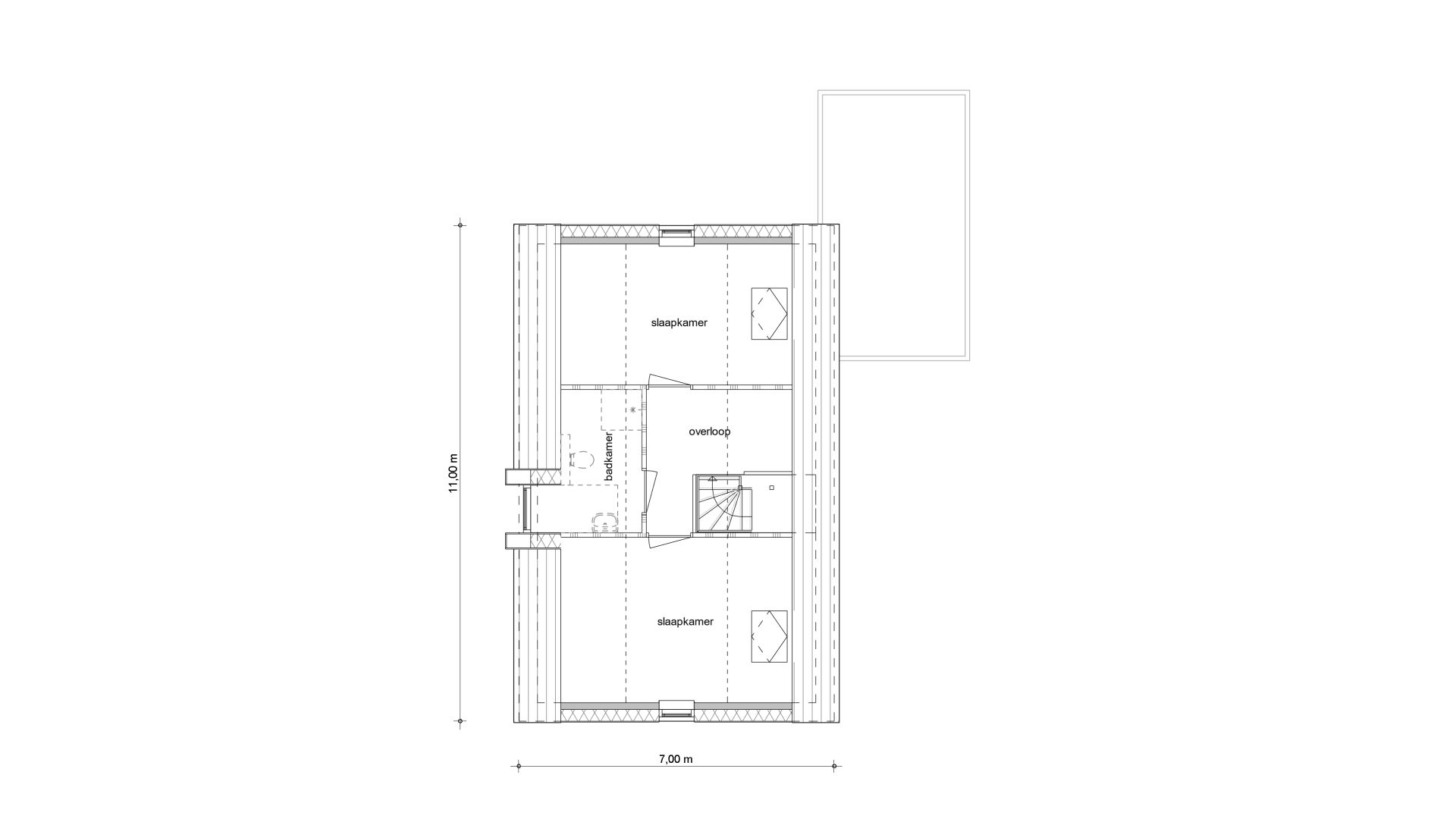
Eerste verdieping

Eerste verdieping Type 04

Woningtype 04 is een comfortabele woning met een open keuken en royale living met uitzicht op de tuin en het achterliggende Sintma park. De geïsoleerde berging is via de woning en straat te bereiken. De 1e verdieping heeft 2 ruime slaapkamers en een heerlijke badkamer.

Woonoppervlakte

123m2

Kamers

4-6

Inhoud

516m3

V044-0002-00-R_001
25021_2026-03-30_B0_CMS

Type 04 in combinatie met kavels

  • 1

    Kavel 1

    Beschikbaar
  • 2

    Kavel 2

    Beschikbaar
  • 3

    Kavel 3

    Beschikbaar
  • 4

    Kavel 4

    Beschikbaar
+
Op zoek naar een nieuwbouwkavel om je droomwoning te bouwen?