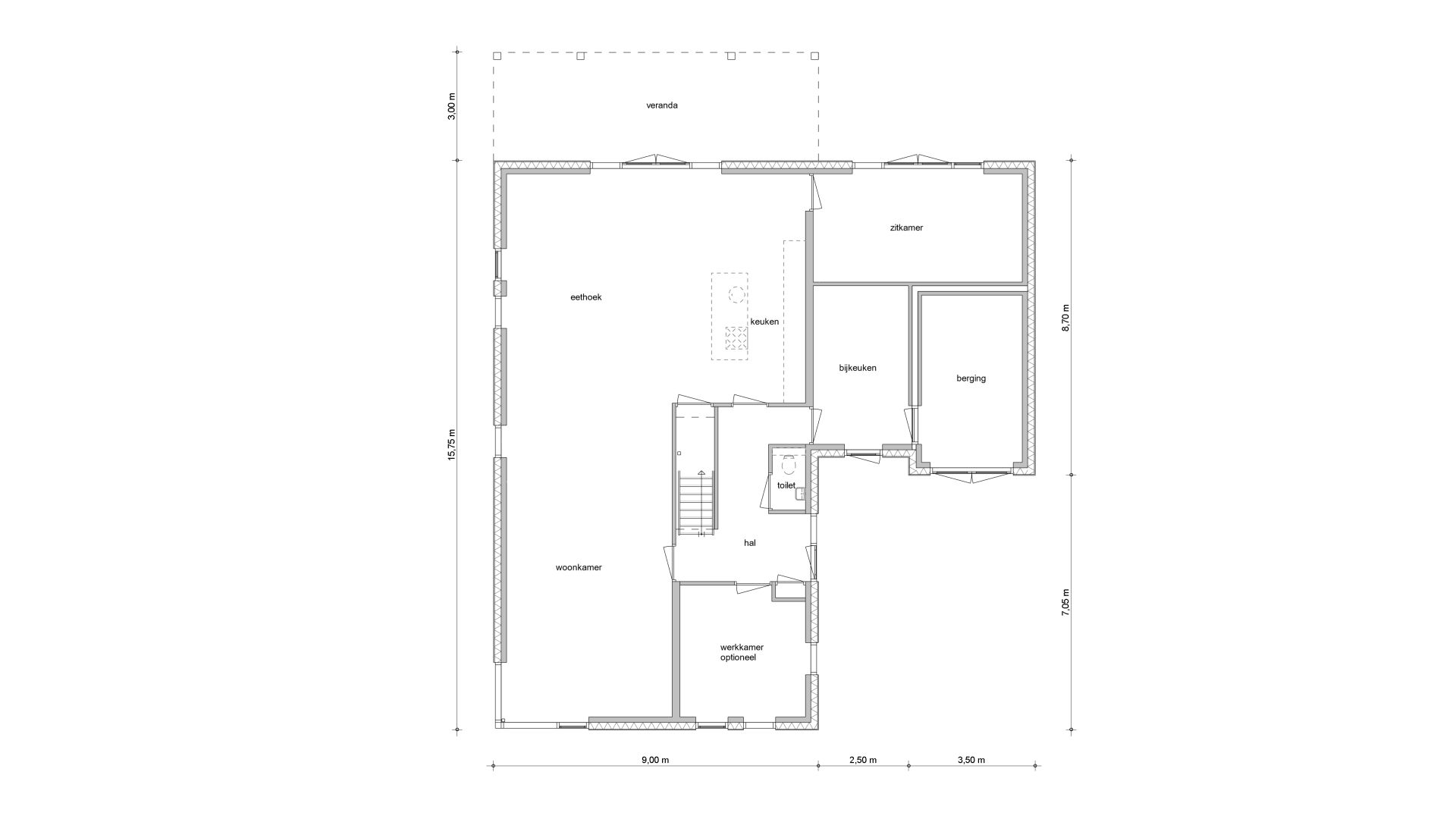
Begane grond

Begane grond Type 01

Eerste verdieping

Eerste verdieping Type 01

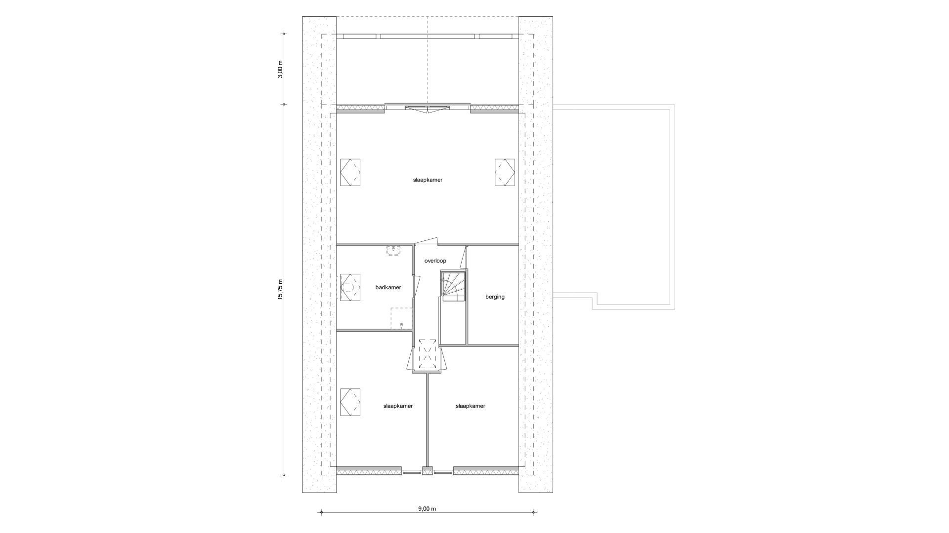
Tweede verdieping

Tweede verdieping Type 01

Een stoere schuurwoning met natuurlijke materialen zoals riet en hout. De ruime woonkeuken en extra tuinkamer verbinden binnen met buiten en vormen ideale plekken om te loungen, werken of ontspannen. Beneden vind je tevens een royale woonkamer en een kantoor. Boven liggen drie ruime slaapkamers en een badkamer, met opties voor een extra badkamer of zelfs slapen en baden op de begane grond.

Woonoppervlakte

283m2

Kamers

4-6

Inhoud

1113m3

V075-0005-00-R_001
boekholt makelaar_plankaart

Type 01 in combinatie met kavels

  • 1

    Kavel 1

    Beschikbaar
  • 2

    Kavel 2

    Beschikbaar
  • 3

    Kavel 3

    Beschikbaar
  • 4

    Kavel 4

    Beschikbaar
  • 5

    Kavel 5

    Beschikbaar
  • 6

    Kavel 6

    Beschikbaar
  • 7

    Kavel 7

    Beschikbaar
  • 8

    Kavel 8

    Beschikbaar
  • 9

    Kavel 9

    Beschikbaar
+
Op zoek naar een nieuwbouwkavel om je droomwoning te bouwen?