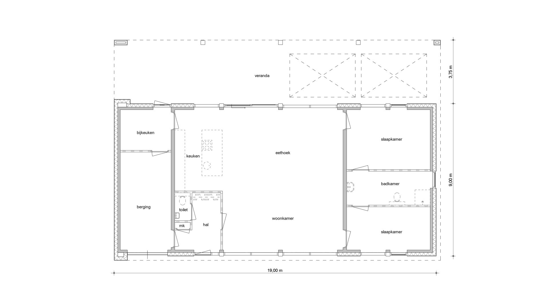
Begane grond

Begane grond Type 02

Een moderne kubistische villa met ranke, horizontale belijning en verdiepingshoge puien maken de woning niet alleen modern, maar ook licht en luchtig. Het witte kader omarmt een spel van open en gesloten vlakken, afgewisseld met warme houtaccenten die de villa harmonieus verankeren in het groene decor. De woning is volledig gelijkvloers en biedt een luxe, levensloopbestendige basis.

Woonoppervlakte

148m2

Kamers

4-6

Inhoud

581m3

V065-0003-00-L_001
boekholt makelaar_plankaart

Type 02 in combinatie met kavels

  • 1

    Kavel 1

    Beschikbaar
  • 2

    Kavel 2

    Beschikbaar
  • 3

    Kavel 3

    Beschikbaar
  • 4

    Kavel 4

    Beschikbaar
  • 5

    Kavel 5

    Beschikbaar
  • 6

    Kavel 6

    Beschikbaar
  • 7

    Kavel 7

    Beschikbaar
  • 8

    Kavel 8

    Beschikbaar
  • 9

    Kavel 9

    Beschikbaar
+
Op zoek naar een nieuwbouwkavel om je droomwoning te bouwen?