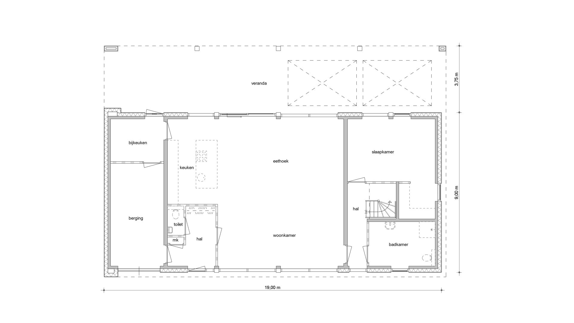
Begane grond

Begane grond Type 02 (opbouw)

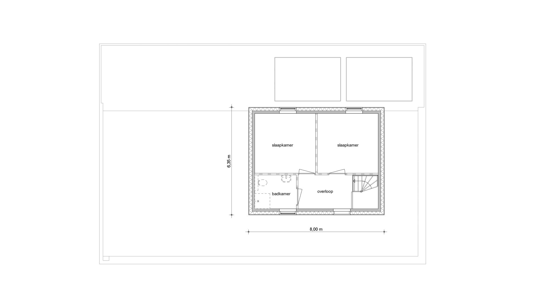
Eerste verdieping

Eerste verdieping Type 02 (opbouw)

Een moderne kubistische villa met ranke, horizontale belijning en verdiepingshoge puien maken de woning niet alleen modern, maar ook licht en luchtig. Het witte kader omarmt een spel van open en gesloten vlakken, afgewisseld met warme houtaccenten die de villa harmonieus verankeren in het groene decor. De woning is volledig gelijkvloers en biedt een luxe, levensloopbestendige basis. In de opbouw is ruimte voor 2 extra slaapkamers en een badkamer.

Woonoppervlakte

189m2

Kamers

4-6

Inhoud

729m3

V065-0004-00-L_001
boekholt makelaar_plankaart

Type 02 (opbouw) in combinatie met kavels

  • 1

    Kavel 1

    Beschikbaar
  • 2

    Kavel 2

    Beschikbaar
  • 3

    Kavel 3

    Beschikbaar
  • 4

    Kavel 4

    Beschikbaar
  • 5

    Kavel 5

    Beschikbaar
  • 6

    Kavel 6

    Beschikbaar
  • 7

    Kavel 7

    Beschikbaar
  • 8

    Kavel 8

    Beschikbaar
  • 9

    Kavel 9

    Beschikbaar
+
Op zoek naar een nieuwbouwkavel om je droomwoning te bouwen?