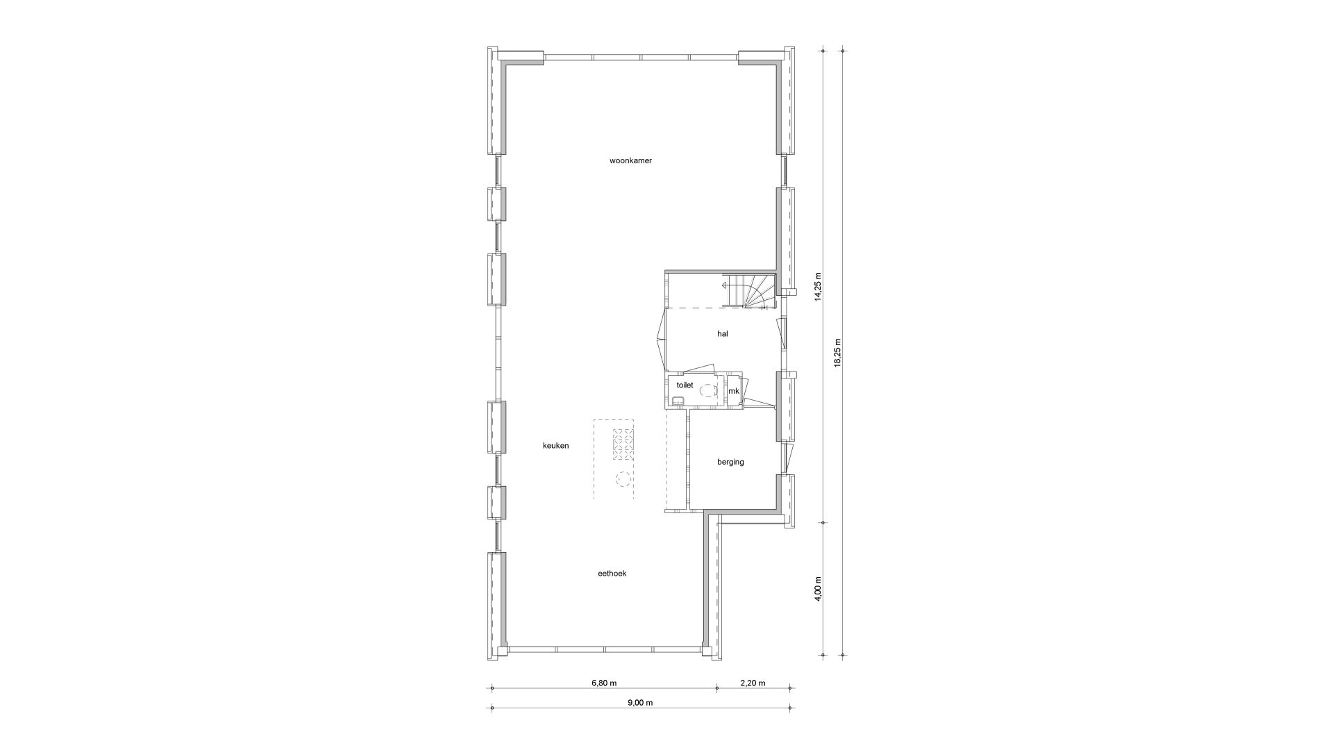
Begane grond

Begane grond Type 03

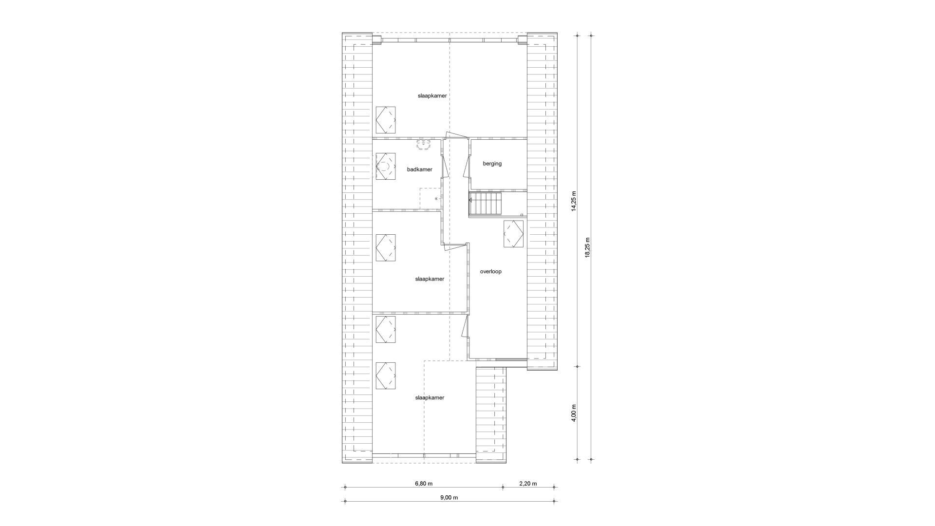
Eerste verdieping

Eerste verdieping Type 03

Deze schuurwoning oogt zowel stoer als verfijnd. Door het langgerekte volume krijgt de woning een moderne twist door het donkere dak dat zich als een donkere vacht over de gevels vouwt. De begane grond biedt een zee aan ruimte en flexibiliteit. Op de bovenverdieping bevinden zich 3 ruime slaapkamers en een badkamer, allemaal ontworpen met oog voor licht en rust.

Woonoppervlakte

224m2

Kamers

4-6

Inhoud

937m3

V075-0007-00-R_001
boekholt makelaar_plankaart

Type 03 in combinatie met kavels

  • 1

    Kavel 1

    Beschikbaar
  • 2

    Kavel 2

    Beschikbaar
  • 3

    Kavel 3

    Beschikbaar
  • 4

    Kavel 4

    Beschikbaar
  • 5

    Kavel 5

    Beschikbaar
  • 6

    Kavel 6

    Beschikbaar
  • 7

    Kavel 7

    Beschikbaar
  • 8

    Kavel 8

    Beschikbaar
  • 9

    Kavel 9

    Beschikbaar
+
Op zoek naar een nieuwbouwkavel om je droomwoning te bouwen?