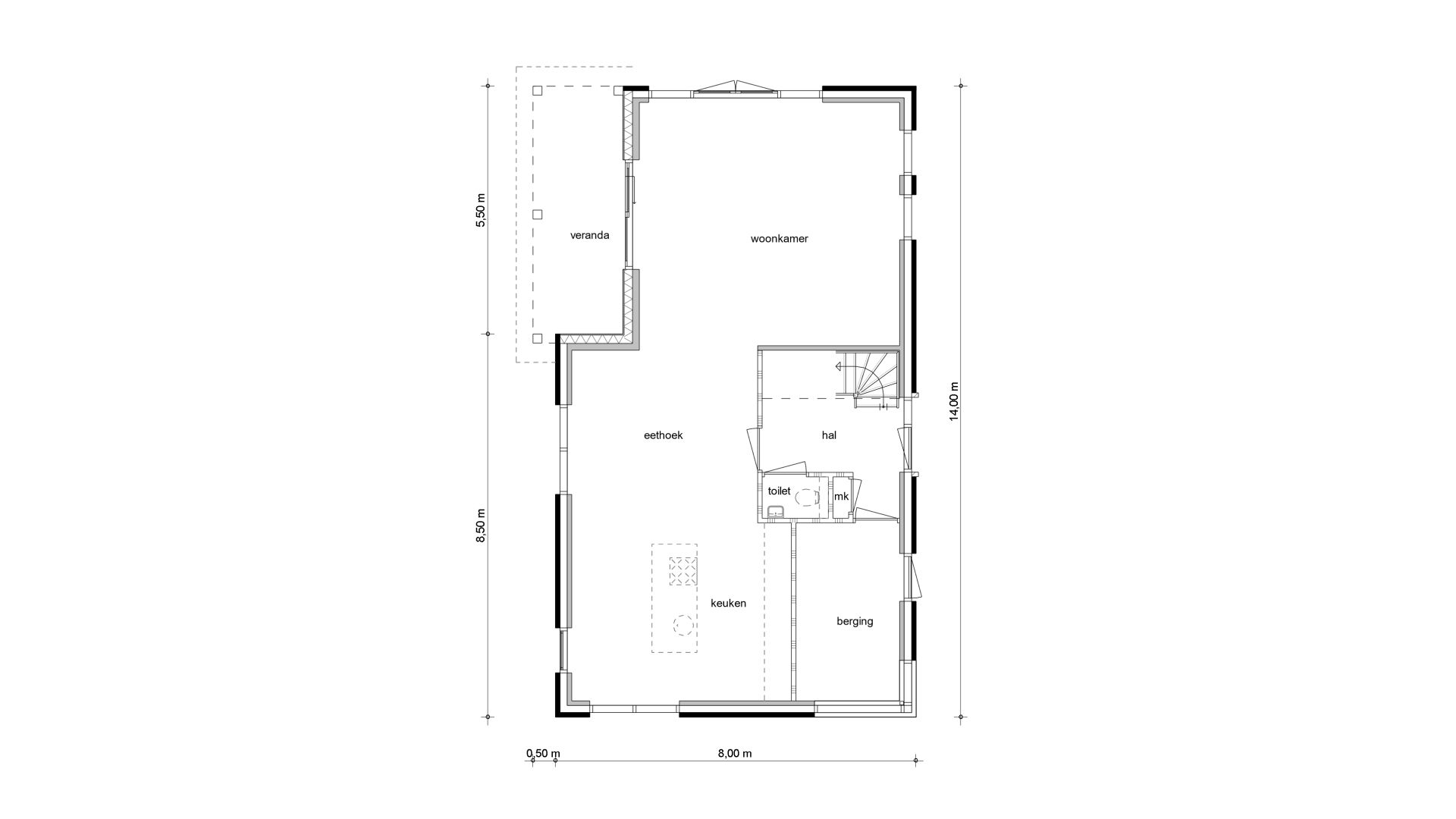
Begane grond

Begane grond Type 04

Eerste verdieping

Eerste verdieping Type 04

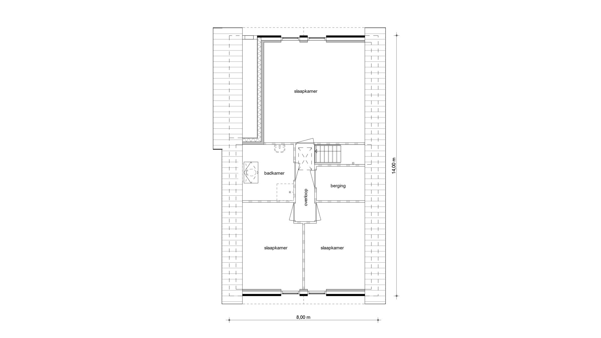
Tweede verdieping

Tweede verdieping Type 04

Deze traditioneel landschappelijke woning met rode baksteen, klassieke dakpannen en ingetogen detaillering past perfect aan de Terheijlsterweg. De begane grond heeft een royale leefkeuken met zicht op de tuin en een ruime woonkamer. De inpandige bijkeuken maakt het plaatje compleet. Op de verdieping vind je drie ruime slaapkamers en een comfortabele badkamer.

Woonoppervlakte

174m2

Kamers

4-6

Inhoud

683m3

V075-0006-00-R_001
boekholt makelaar_plankaart

Type 04 in combinatie met kavels

  • 19

    Kavel 19

    Beschikbaar
  • 20

    Kavel 20

    Beschikbaar
  • 21

    Kavel 21

    Beschikbaar
  • 22

    Kavel 22

    Beschikbaar
  • 23

    Kavel 23

    Beschikbaar
+
Op zoek naar een nieuwbouwkavel om je droomwoning te bouwen?