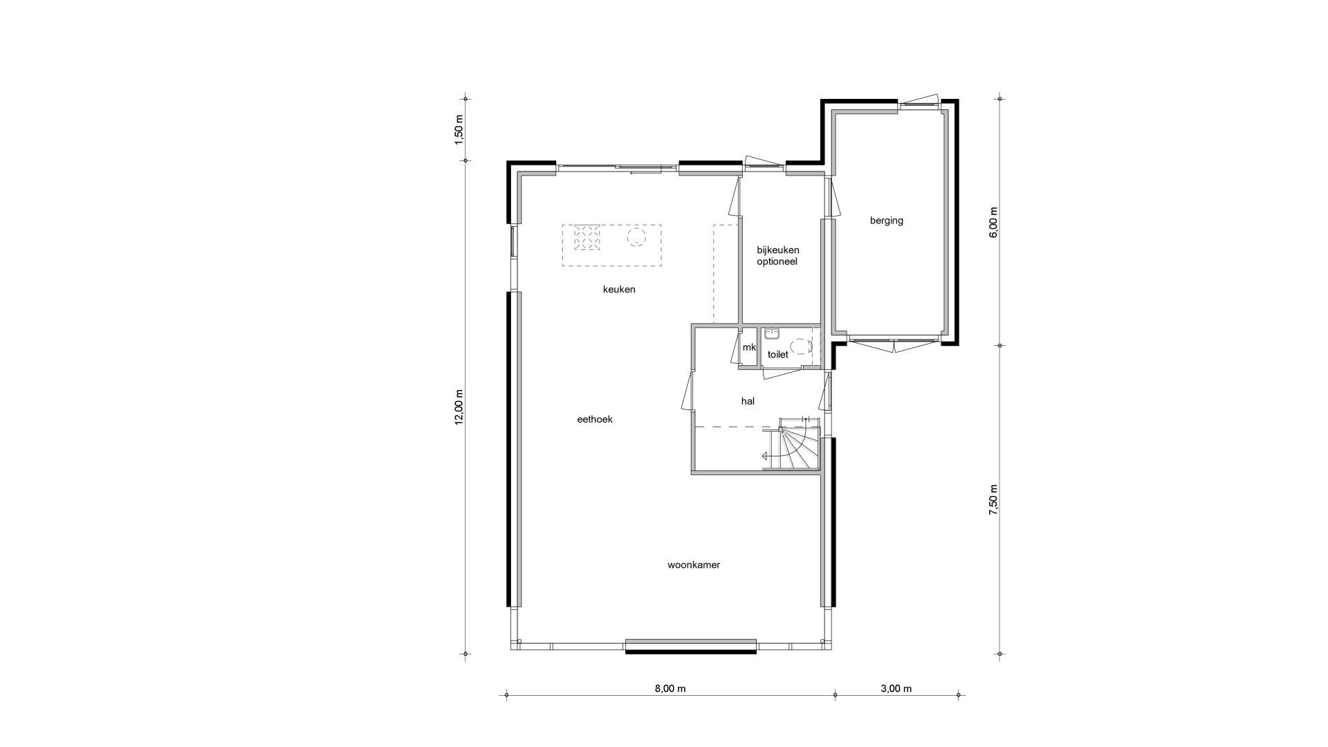
Begane grond

Begane grond Type 05a

Eerste verdieping

Eerste verdieping Type 05a

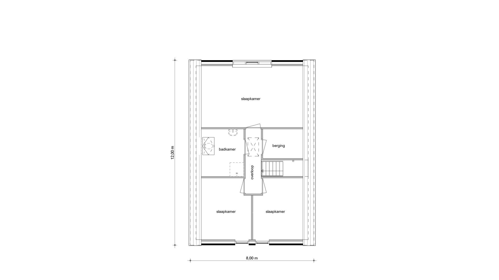
Tweede verdieping

Tweede verdieping Type 05a

Type 5a straalt eigentijdse strakheid uit. De roodbruine baksteen en het ontbreken van een dakoverstek geven de woning een krachtige, heldere belijning. Je geniet hier van een royale leefkeuken, een zonnige woonkamer, drie slaapkamers, een badkamer en extra bergruimte. Dankzij de flexibele plattegronden creëer je een gezinswoning die volledig meebeweegt met jouw wensen.

Woonoppervlakte

172m2

Kamers

4-6

Inhoud

679m3

V059-0005-00-R_001
boekholt makelaar_plankaart

Type 05a in combinatie met kavels

  • 3

    Kavel 3

    Beschikbaar
+
Op zoek naar een nieuwbouwkavel om je droomwoning te bouwen?
Nieuwbouwplannen? Bezoek onze Inspiratiedag in Meerkerk of Deventer op zaterdag 13 december tussen 10:00 - 15:00 uur!