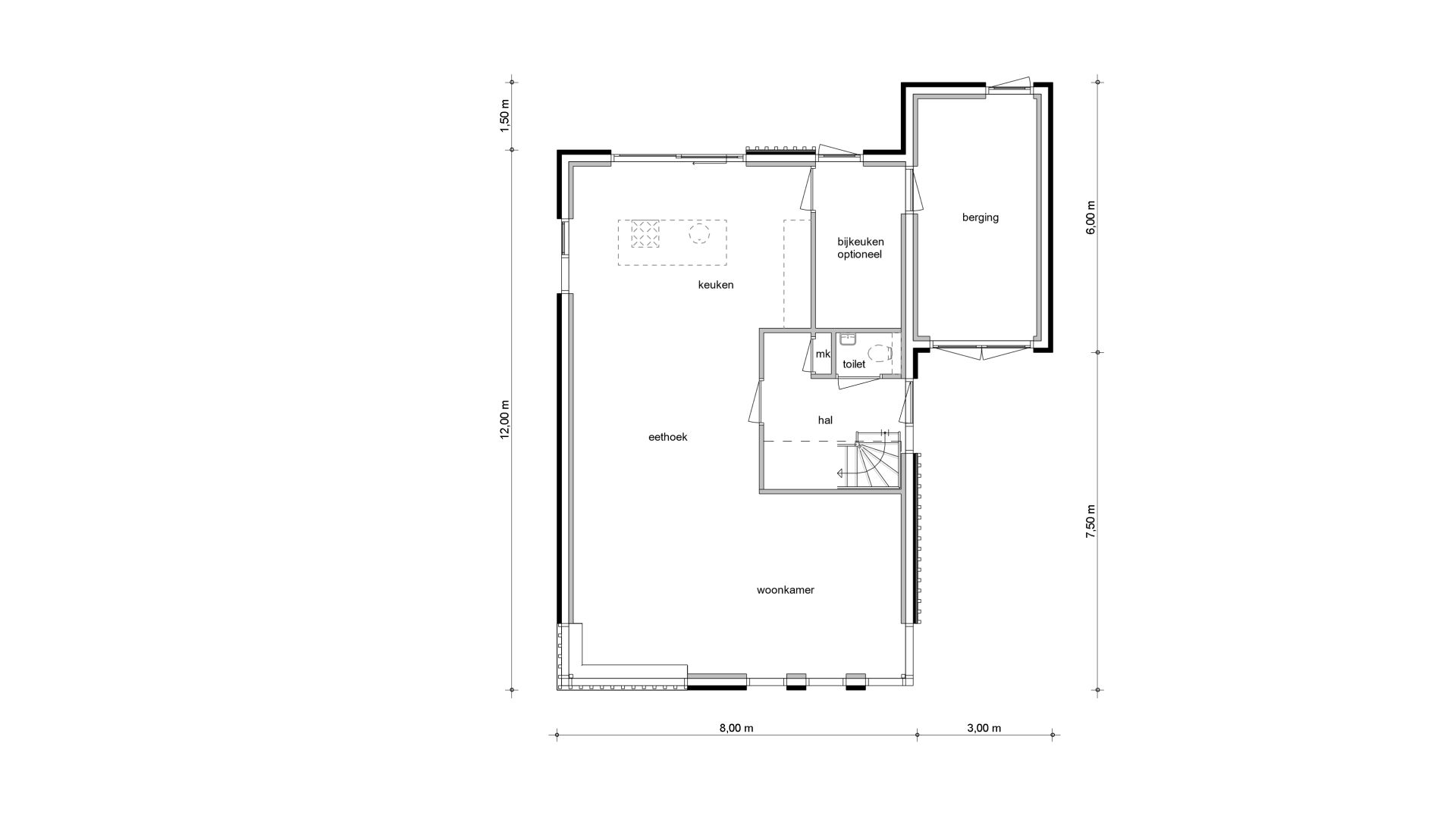
Begane grond

Begane grond Type 05b

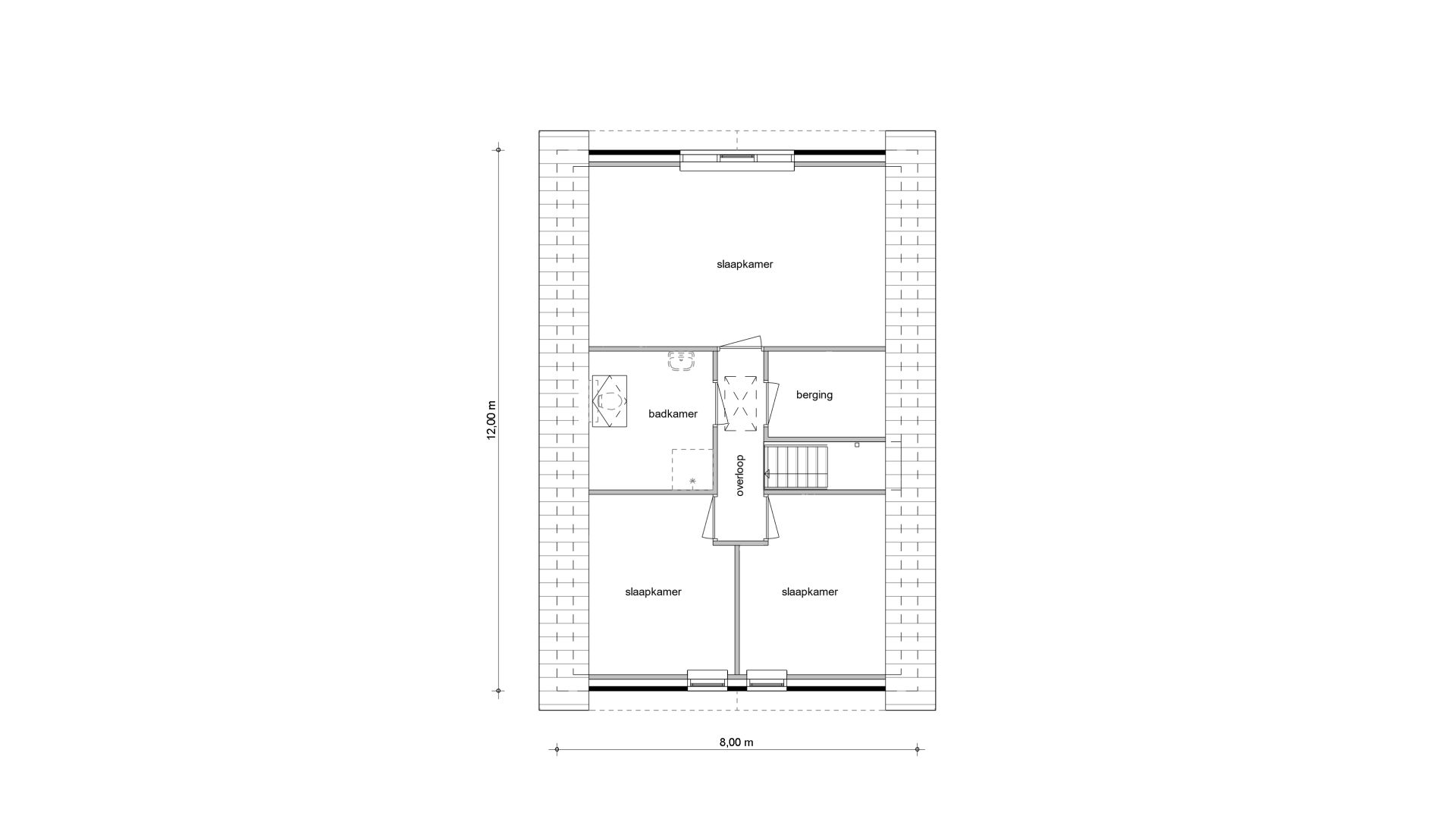
Eerste verdieping

Eerste verdieping Type 05b

Tweede verdieping

Tweede verdieping Type 05b

Bij type 5b vormen hout en donkere baksteen het uitgangspunt. Het dakoverstek en de lamellen zijn uitgevoerd in naturel hout en keren als verfijnd detail terug in de gevels, waar ze het hoekraam omlijsten en de woning een warme, lodgeachtige uitstraling geven. Je geniet hier van een royale leefkeuken, een zonnige woonkamer, drie slaapkamers, een badkamer en extra bergruimte. Dankzij de flexibele plattegronden creëer je een gezinswoning die volledig meebeweegt met jouw wensen.

Woonoppervlakte

172m2

Kamers

4-6

Inhoud

679m3

V059-0005-01-R_001
boekholt makelaar_plankaart

Type 05b in combinatie met kavels

  • 24

    Kavel 24

    Beschikbaar
  • 25

    Kavel 25

    Beschikbaar
  • 26

    Kavel 26

    Beschikbaar
  • 27

    Kavel 27

    Beschikbaar
  • 28

    Kavel 28

    Beschikbaar
  • 29

    Kavel 29

    Beschikbaar
  • 30

    Kavel 30

    Beschikbaar
  • 31

    Kavel 31

    Beschikbaar
+
Op zoek naar een nieuwbouwkavel om je droomwoning te bouwen?