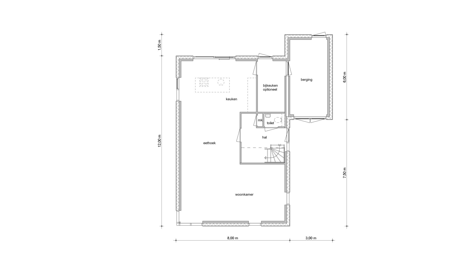
Begane grond

Begane grond Type 05c

Eerste verdieping

Eerste verdieping Type 05c

Tweede verdieping

Tweede verdieping Type 05c

Type 5 c is een pure en robuuste woning. De houten gevels geven de woning een speels en modern karakter. Het ontbreken van een overstek versterkt het minimalistische ontwerp en het fascinerende lijnenspel. Je geniet hier van een royale leefkeuken, een zonnige woonkamer, drie slaapkamers, een badkamer en extra bergruimte. Dankzij de flexibele plattegronden creëer je een gezinswoning die volledig meebeweegt met jouw wensen.

Woonoppervlakte

172m2

Kamers

4-6

Inhoud

679m3

V059-0005-02-R_001
boekholt makelaar_plankaart

Type 05c in combinatie met kavels

  • 3

    Kavel 3

    Beschikbaar
+
Op zoek naar een nieuwbouwkavel om je droomwoning te bouwen?
Nieuwbouwplannen? Bezoek onze Inspiratiedag in Meerkerk of Deventer op zaterdag 13 december tussen 10:00 - 15:00 uur!