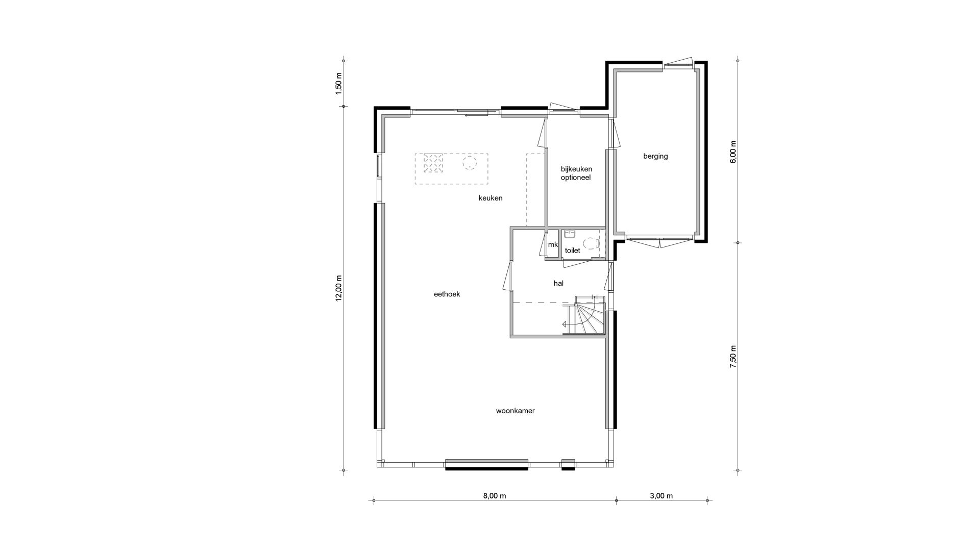
Begane grond

Begane grond Type 05d

Eerste verdieping

Eerste verdieping Type 05d

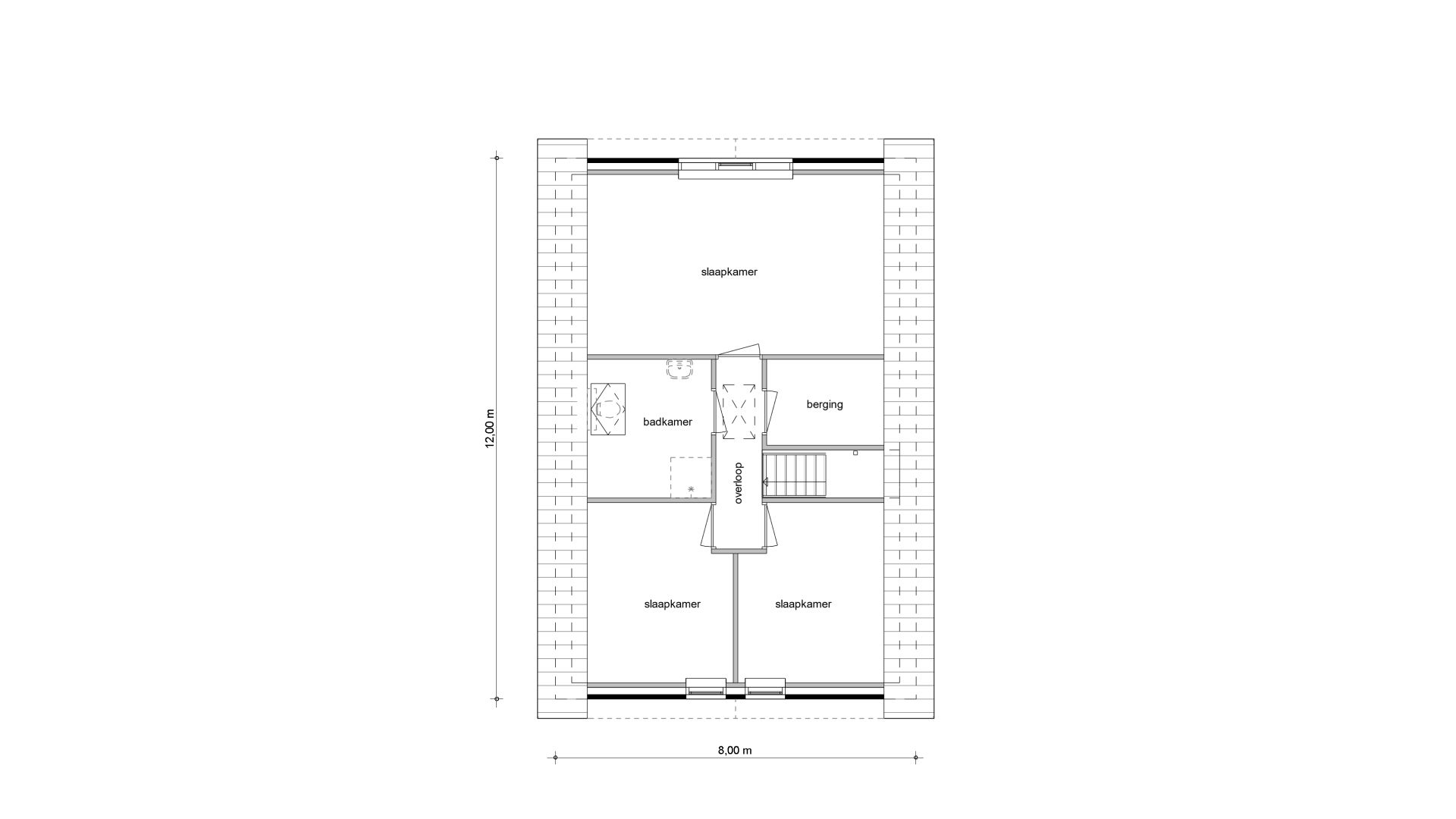
Tweede verdieping

Tweede verdieping Type 05d

Type 5d valt op door de zwartbruine gevel, die prachtig contrasteert met de klassieke rode dakpannen. Kiezelgrijze kozijnen en dakoverstekken verzachten de overgangen en geven de woning een warme, ingetogen uitstraling. Je geniet hier van een royale leefkeuken, een zonnige woonkamer, drie slaapkamers, een badkamer en extra bergruimte. Dankzij de flexibele plattegronden creëer je een gezinswoning die volledig meebeweegt met jouw wensen.

Woonoppervlakte

172m2

Kamers

4-6

Inhoud

679m3

V059-0005-03-R_001
boekholt makelaar_plankaart

Type 05d in combinatie met kavels

  • 10

    Kavel 10

    Beschikbaar
  • 11

    Kavel 11

    Beschikbaar
  • 12

    Kavel 12

    Beschikbaar
  • 13

    Kavel 13

    Beschikbaar
  • 14

    Kavel 14

    Beschikbaar
  • 15

    Kavel 15

    Beschikbaar
+
Op zoek naar een nieuwbouwkavel om je droomwoning te bouwen?