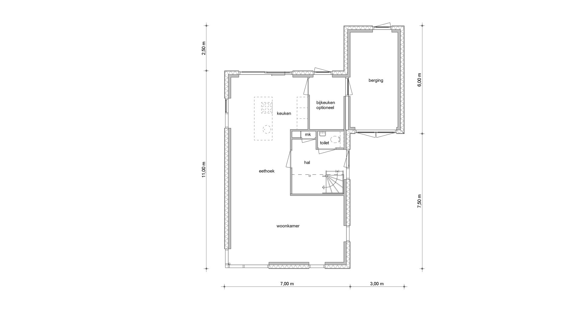
Begane grond

Begane grond Type 6c

Eerste verdieping

Eerste verdieping Type 6c

Tweede verdieping

Tweede verdieping Type 6c

Woonoppervlakte

182m2

Kamers

4-6

Inhoud

711m3

V009-0008-01-R_001
boekholt makelaar_plankaart

Type 6c in combinatie met kavels

  • 16

    Kavel 16

    Beschikbaar
  • 17

    Kavel 17

    Beschikbaar
  • 18

    Kavel 18

    Beschikbaar
+
Op zoek naar een nieuwbouwkavel om je droomwoning te bouwen?