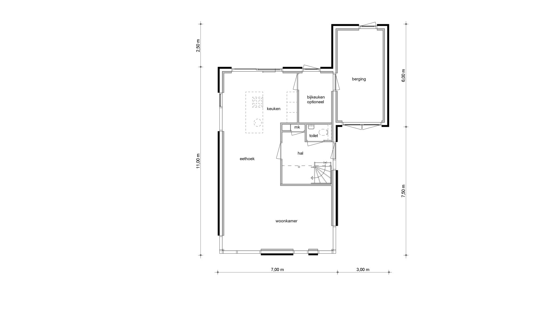
Begane grond

Begane grond Type 6d

Eerste verdieping

Eerste verdieping Type 6d

Tweede verdieping

Tweede verdieping Type 6d

Woonoppervlakte

182m2

Kamers

4-6

Inhoud

711m3

V009-0008-02-R_001
boekholt makelaar_plankaart

Type 6d in combinatie met kavels

  • 10

    Kavel 10

    Beschikbaar
  • 11

    Kavel 11

    Beschikbaar
  • 12

    Kavel 12

    Beschikbaar
  • 13

    Kavel 13

    Beschikbaar
  • 14

    Kavel 14

    Beschikbaar
  • 15

    Kavel 15

    Beschikbaar
+
Op zoek naar een nieuwbouwkavel om je droomwoning te bouwen?